San Gwann 350,000

San Gwann 350,000 San Gwann 350,000

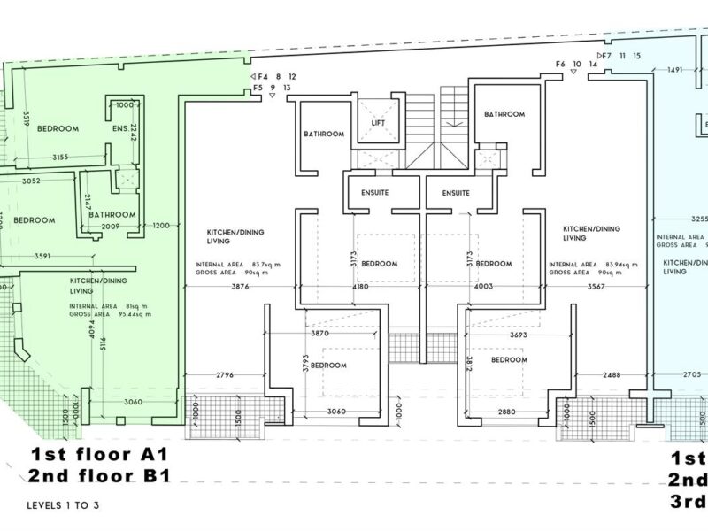
San Ġwann — Modern 2‑Bedroom Apartment (Apartment A1) — €350,000

Overview A brand‑new, first‑floor 95.4 sqm two‑bedroom apartment finished to shell (excluding bathrooms and internal doors), ready in the coming months. Ideal for buyers seeking a contemporary home in a quiet location within walking distance of all local amenities.

Key Features

  • Total internal area: 95.4 sqm
  • Open‑plan kitchen / living / dining area with open views
  • Two bedrooms accessed via hallway; main bedroom with en‑suite and private balcony
  • Finished excluding bathrooms and internal doors (ready for buyer’s personal fixtures/finishes)
  • Quiet neighbourhood, walking distance to shops, schools and transport
  • Optional interconnected garages available (separate purchase)
  • Only apartment remaining: A1 (marked in green on development plan)
  • Asking price: €350,000

Why buy Contemporary layout, excellent natural light and turnkey construction with flexibility to complete interiors to your taste. Perfect as a primary residence or investment in a sought‑after San Ġwann location.

Viewing & Contact For the development plan, garage options, and to arrange a viewing, contact Mr Paul Schembri at 79352743  Viewing by appointment only.

Sign In

Register

Reset Password

Please enter your username or email address, you will receive a link to create a new password via email.